Компанія ТОВ «ЗЕНІТ КО» пропонує купити алюмінієвий профіль для фасадів власної розробки. Наше конструкторське бюро багато років займається розрахунком і виробництвом фасадних систем скління. Накопичений досвід ми вирішили використовувати для створення інноваційної серії - з високими характеристиками міцності, хорошою тепло- і звукоізоляцією, і при цьому зниженим питомою вагою.
Результатом зусиль наших інженерів стала стійко-ригельна алюмінієва фасадна система з високою конструкційної гнучкістю. Вона може бути застосована для створення фасадів різного типу і розмірів, серед яких:
- вітражі - вертикальні або похилі заповнення стін, опорою для яких служать несучі елементи підстави будівлі;
- похилі світлопрозорі конструкції.
На базі нашої алюмінієвої фасадної системи реалізовані десятки масштабних архітектурних проектів в Києві і по всій Україні.
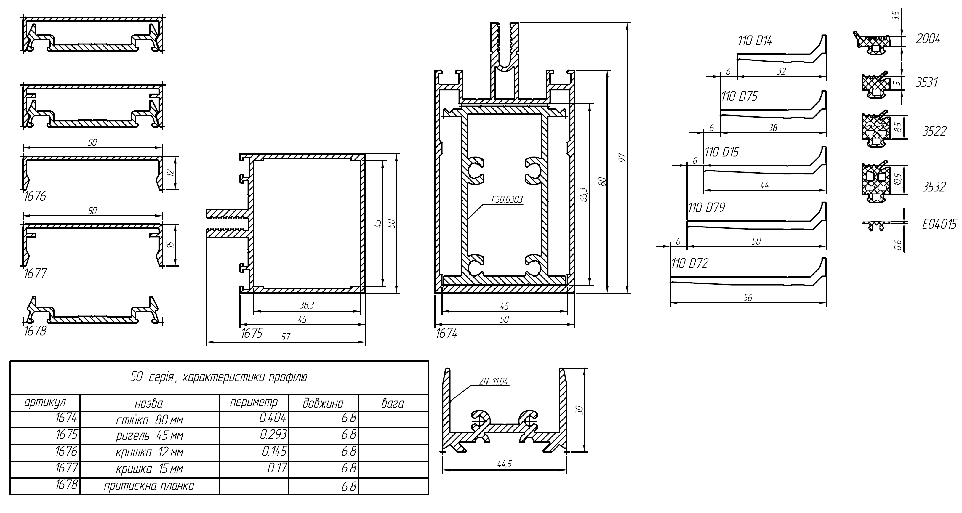
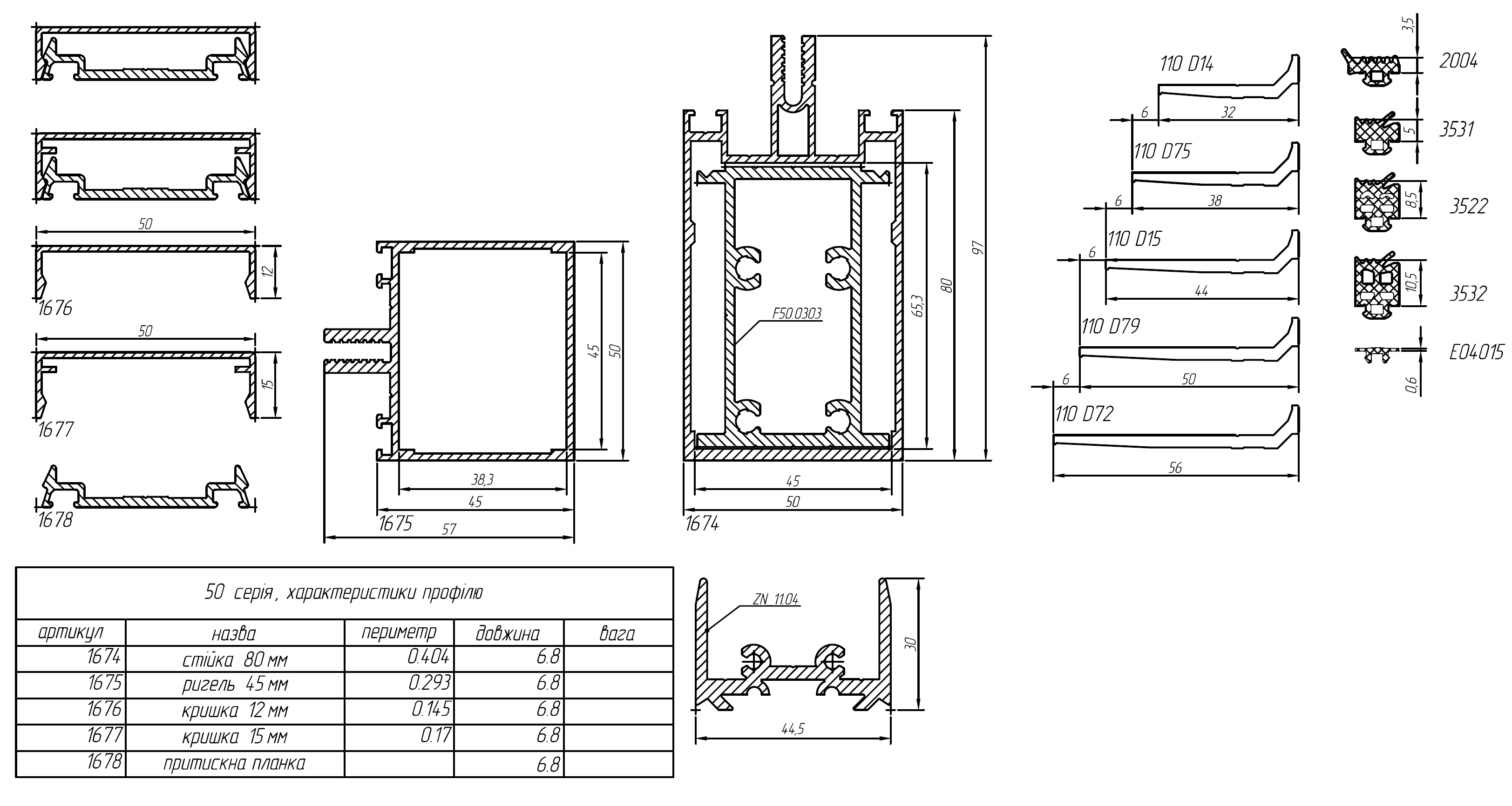
Технічні характеристики наших фасадних систем скління
Стійко-ригельна фасадна система включає всі необхідні комплектуючі:
- вертикальні стійки;
- горизонтальні ригелі;
- опори і кронштейни, з'єднувальні елементи;
- додаткові профілі;
- допоміжні елементи - притиски, кришки і так далі.
Ширина видимої частини складає 50 мм. Поверхня фасадного алюмінієвого профілю може бути забарвлена в будь-який колір по системі RAL.
Клімату України характерні низькі температури взимку і досить високі - влітку. Щоб фасадна система забезпечувала достатній захист будівлі від втрат тепла, ми використовуємо набір термовставок з ударостійкого ПВХ і спіненого поліетилену.
Також передбачена компенсація деформацій, викликаних температурним розширенням алюмінієвого профілю для фасадів. При цьому зберігаються теплоізоляційні властивості конструкції.
Фасадний алюмінієвий профіль сумісний зі склопакетами або теплоізоляційними панелями товщиною від 24 до 40 мм. Конструкція допускає установку вікон, що відкриваються бажаного типу в будь-який потрібній точці. Монтаж скління, віконних і дверних елементів проводитися зовні за допомогою алюмінієвих притискних планок з ущільнювачами.
Фасадна профільна система виготовляється на потужностях заводу «Алюпол», який входить до числа провідних підприємств України. Наші фахівці мають можливість проконтролювати не тільки параметри кінцевих виробів, але і відповідність всього техпроцесу заданим умовам. Ми гарантуємо бездоганну якість нашої продукції.
Купити алюмінієвий профіль для фасадів з доставкою по Києву та Україні
Ми продаємо фасадні системи оптовими партіями. Ціна і терміни поставки замовлення залежать від його обсягу, тому розраховуються індивідуально.
Доставка - національними транспортними компаніями, самовивіз з Києва.
КАТАЛОГ по даній серії ви можете:

